Give Me A Call: 250-702-5950

460 Irwin Nanaimo, BC V9R 4X2

460 Irwin St

Offered at: $399,000

MLS®: 996513

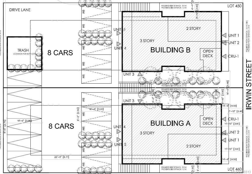
Approved Development Opportunity10 residential+2 Commercial Units. Located in vibrant South Nanaimo,450 & 460 Irwin Street offer a rare and ready-to-go development opportunity.Centrally positioned within walking distance to the scenic seawall and convenient shopping, this property combines an excellent location with an already-approved vision for the future.The project has a Development Permit approved by the City of Nanaimo for two multi-family buildings, each thoughtfully designed with five residential units + one CRU. Building A and Building B are mirror images, and the floor plans are up to 1000 sq/ft.The innovative design ensures appropriate parking for residents and supports much-needed "missing middle" housing — a critical type of housing that bridges the gap between single-family homes and larger apartment complexes.This is a prime opportunity to step into a project that aligns with Nanaimo’s growing demand for diverse, attainable housing.Measurements approximate to be verified

Quick Stats

Key Home Data

0
BATH(S)
BED(S)
Contact for
SQFT
YES
SHOWING AVAILABLE
Property Type:
Commercial Sale
Home Ownership:
Freehold

Payment Calculator

Calculate your monthly mortgage payment.

Mortgage Amount
$
Amortization
years
Payment Freq.
Interest Rate
%
Calculating...

All About the Details

See specific details below.

Neighbourhood Statistics

Get to know your neighbourhood.

Similar Properties

Other properties you might like.

Search by Keyword:
« prev 1 2 3 4 5 11 12 13 14 15 next »

Request a Showing

Have questions about this property?

Contact Scott Fraser
About This Property.


Office: 250-702-5950