Give Me A Call: 250-702-5950

1670 Pequod Gabriola Island, BC V0R 1X5

1670 Pequod Cres

Offered at: $449,000

MLS®: 1012056

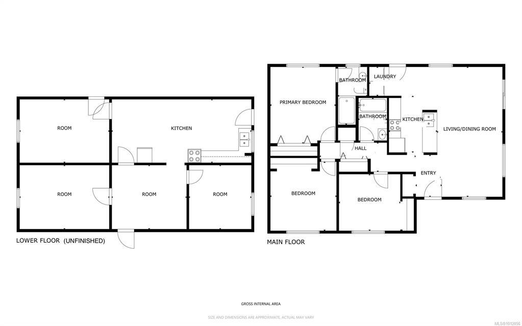
This 3-bedroom, 2-bathroom home built in 1994 sits on a sunny, level .46-acre property just a short walk to the beach. The 1164 square foot home offers plenty of potential, with a lower level that could be further developed, and a usable yard that’s well-suited for gardening or creating your own outdoor retreat. On the private property you’ll also find a few outbuildings. While the house and sheds will require work, the true value is in the land, location, and opportunity to build equity in a sought-after Gabriola setting. Known as the “Isle of the Arts,” Gabriola offers a relaxed island lifestyle, beautiful beaches, forested trails, and a welcoming community—all just a short ferry ride from Nanaimo. All Information to be verified by the buyer.

Quick Stats

Key Home Data

2
BATH(S)
3
BED(S)
Contact for
SQFT
YES
SHOWING AVAILABLE
Property Type:
Residential
Home Ownership:
Freehold

Payment Calculator

Calculate your monthly mortgage payment.

Mortgage Amount
$
Amortization
years
Payment Freq.
Interest Rate
%
Calculating...

All About the Details

See specific details below.

Neighbourhood Statistics

Get to know your neighbourhood.

Similar Properties

Other properties you might like.

Search by Keyword:
« prev 1 2 3 4 5 256 257 258 259 260 next »

Request a Showing

Have questions about this property?

Contact Scott Fraser
About This Property.


Office: 250-702-5950