Give Me A Call: 250-702-5950

253 Walworth Campbell River, BC V9W 0J3

253 Walworth Rd

Offered at: $1,048,900

MLS®: 1013210

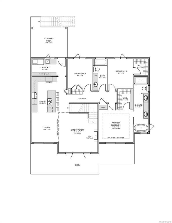
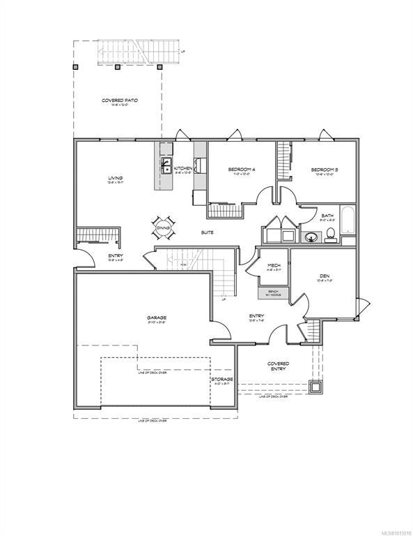
Welcome to 253 Walworth Road South, where beauty meets function and comfort meets opportunity. This remarkable residence offers nearly 3,000 SQFT of thoughtfully designed living space in a layout that is both versatile and impressive. The home showcases a chef inspired kitchen with sleek stone countertops, an oversized island, and impressive ceiling heights throughout, creating a sense of space and sophistication in every room. Step onto the balcony to entertain or simply unwind with your favorite drink in hand. A fully legal 2-bedroom suite adds exceptional flexibility, ideal for multi-generational living, private guests, or income generating potential. An oversized garage and a generous 5 foot crawl space provide abundant storage solutions. Perfectly located close to schools, trails, shops, and coffee spots, this home offers unmatched convenience and lifestyle. Built by the award-winning Crowne Pacific Development Corp., every detail reflects superior quality and craftsmanship.

Quick Stats

Key Home Data

3
BATH(S)
5
BED(S)
Contact for
SQFT
YES
SHOWING AVAILABLE
Property Type:
Residential
Home Ownership:
Freehold/Strata

Payment Calculator

Calculate your monthly mortgage payment.

Mortgage Amount
$
Amortization
years
Payment Freq.
Interest Rate
%
Calculating...

All About the Details

See specific details below.

Neighbourhood Statistics

Get to know your neighbourhood.

Similar Properties

Other properties you might like.

Search by Keyword:
« prev 1 2 3 4 5 98 99 100 101 102 next »

Request a Showing

Have questions about this property?

Contact Scott Fraser
About This Property.


Office: 250-702-5950