Give Me A Call: 250-702-5950

2617 Country Langford, BC V9B 6L5

2617 Country Terr

Offered at: $979,900

MLS®: 1016146

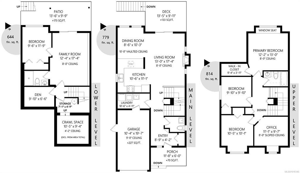
Welcome to Country Terrace – Where Nature, Comfort & Community Come Together! Nestled on a quiet, no-through street backing onto the Galloping Goose Trail, this well-maintained 4-bedroom, 3-bath home perfectly balances privacy, comfort, and convenience. The updated kitchen with quartz countertops opens to a bright dining and living area with a cozy gas fireplace and access to a sunny covered deck—ideal for morning coffee or family dinners. Upstairs features 3 bedrooms plus an office (or 4th bedroom), a beautifully renovated bathroom, and skylights for natural light. The lower level offers a bedroom, den, and full bath—great for guests or teens. Recent upgrades include a new roof, fence, shed, pergola, hot water tank, restored kitchen cabinets, and a 40-amp outlet ready for a hot tub. Friendly neighborhood with annual street parties, community watch, and nearby trails for dog lovers. Quiet, peaceful, and move-in ready—this home truly has it all!

Quick Stats

Key Home Data

3
BATH(S)
4
BED(S)
Contact for
SQFT
YES
SHOWING AVAILABLE
Property Type:
Residential
Home Ownership:
Freehold

Payment Calculator

Calculate your monthly mortgage payment.

Mortgage Amount
$
Amortization
years
Payment Freq.
Interest Rate
%
Calculating...

All About the Details

See specific details below.

Neighbourhood Statistics

Get to know your neighbourhood.

Similar Properties

Other properties you might like.

Search by Keyword:
« prev 1 2 3 4 5 146 147 148 149 150 next »

Request a Showing

Have questions about this property?

Contact Scott Fraser
About This Property.


Office: 250-702-5950