Give Me A Call: 250-702-5950

#101 534 Yates Victoria, BC V8W 1K8

#101 534 Yates St

Offered at: $2,850,000

MLS®: 1017330

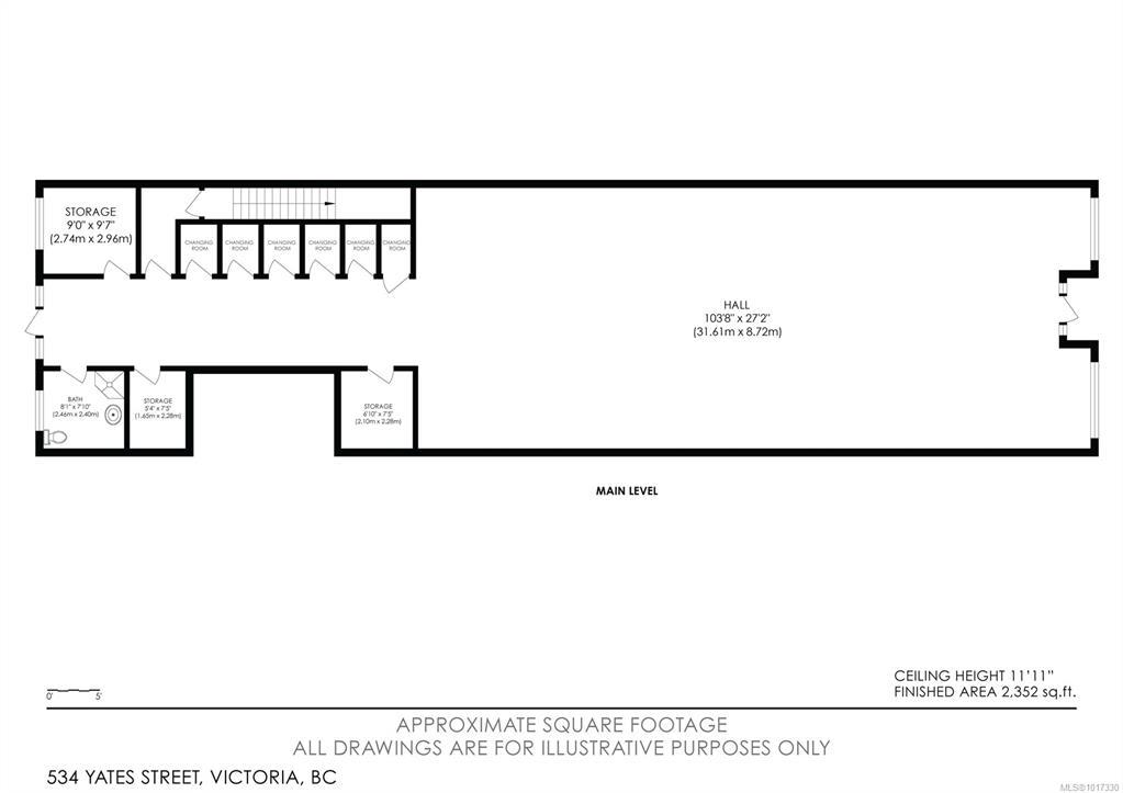
Exceptional commercial investment property on Yates Street, ideally situated in the heart of Victoria’s vibrant downtown core. Totalling 5,317 SF, the main level offers 2,748 SF of prominent street-front retail exposure, with 2,569 SF of lower-level space suitable for storage or offices. Tenanted by a well known and respected Victoria-based menswear retailer, the property is leased until December 31, 2028, with a scheduled rent escalation for the final year. The property has been well maintained and is located across from a large city-managed parking lot, steps from the Inner Harbour and major pedestrian traffic. A secure, income-producing asset in one of downtown Victoria’s most dynamic retail corridors. NDA required for current lease details. Please do not visit or engage with tenant without scheduling a showing with the listing agents.

Quick Stats

Key Home Data

0
BATH(S)
BED(S)
Contact for
SQFT
YES
SHOWING AVAILABLE
Property Type:
Commercial Sale
Home Ownership:
Freehold/Strata

Payment Calculator

Calculate your monthly mortgage payment.

Mortgage Amount
$
Amortization
years
Payment Freq.
Interest Rate
%
Calculating...

All About the Details

See specific details below.

Neighbourhood Statistics

Get to know your neighbourhood.

Similar Properties

Other properties you might like.

Search by Keyword:
« prev 1 2 3 4 5 6 next »

Request a Showing

Have questions about this property?

Contact Scott Fraser
About This Property.


Office: 250-702-5950