Give Me A Call: 250-702-5950

110 Nicol Nanaimo, BC V9R 4S9

110 Nicol St

Offered at: $759,900

MLS®: 1017478

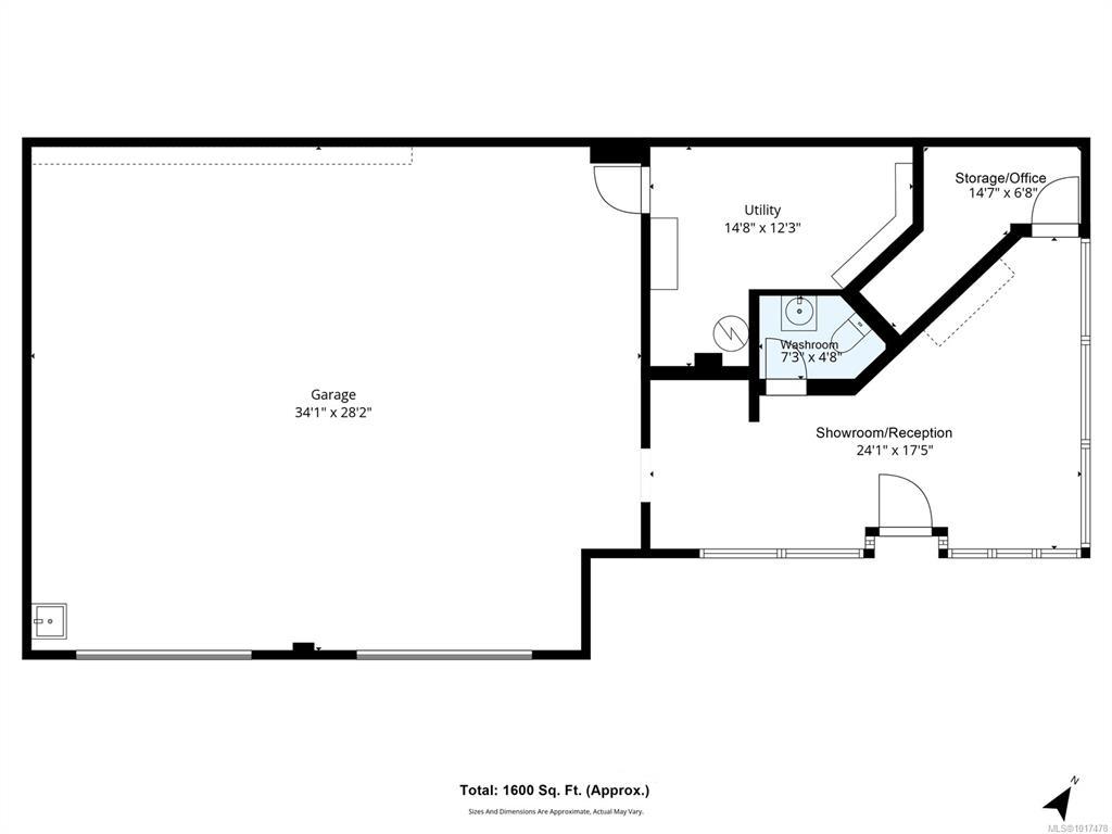
Commercial opportunity in downtown location with DT12 zoning, dual road frontages, and unbeatable exposure to over 45,000 vehicles per day. Situated on a fully fenced 10,586 sq ft lot with ample on-site parking, the property features a prominent backlit pylon sign and new overhead lighting to maximize visibility. The 1,600 sq ft building is equipped with two drive-in bays, a bright showroom/reception area, private office, washroom, 200-amp electrical service, 4-point hoist, swivel boom, and compressor. Heating is provided by a gas furnace for both the showroom and shop, along with electric heat for added efficiency. This well-equipped site offers excellent potential for a service-based businesses, with future development opportunities thanks to its flexible zoning and strategic proximity to downtown amenities, ferry terminals, Helijet, seaplane terminal, and shopping. A rare and versatile investment in the heart of the city. Measurements are approx.

Quick Stats

Key Home Data

0
BATH(S)
BED(S)
Contact for
SQFT
YES
SHOWING AVAILABLE
Property Type:
Commercial Sale
Home Ownership:
Freehold

Payment Calculator

Calculate your monthly mortgage payment.

Mortgage Amount
$
Amortization
years
Payment Freq.
Interest Rate
%
Calculating...

All About the Details

See specific details below.

Neighbourhood Statistics

Get to know your neighbourhood.

Similar Properties

Other properties you might like.

Search by Keyword:
« prev 1 2 3 4 5 6 7 8 9 next »

Request a Showing

Have questions about this property?

Contact Scott Fraser
About This Property.


Office: 250-702-5950