Give Me A Call: 250-702-5950

4955 Laguna Nanaimo, BC V9T 5L7

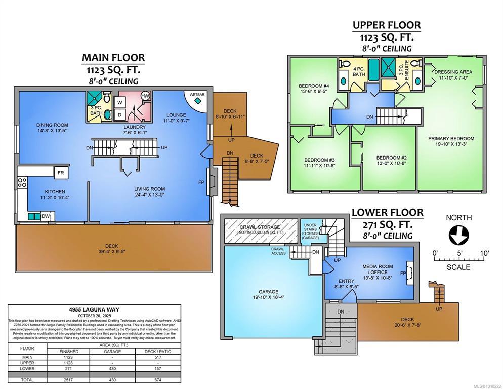
4955 Laguna Way

Offered at: $1,168,000

MLS®: 1018222

Don't miss this gorgeous ocean-view home! Relax and BBQ on the 40-ft deck while soaking in stunning views of the ocean, forest, and flowering trees. This private, peaceful retreat is anything but cookie-cutter. Nearly $300,000 in updates include Hardie Plank siding with cedar and stone accents, triple-glazed windows, new flooring, paint, lighting, and stainless-steel appliances. Enjoy panoramic views from the Winchelsea Islands to Vancouver's skyline. The ideal family layout offers four ocean view bedrooms up and open-concept living on the main with an ocean-view kitchen, living room and large deck. A double garage, fireplaces, heat pump, and parking for 7 add comfort and ease. Surrounded by lush gardens and close to parks, beaches, and trails, this home delivers the true West Coast lifestyle-minutes from top schools and all north-end shopping and malls. Bring your offer

Quick Stats

Key Home Data

3
BATH(S)
4
BED(S)
Contact for
SQFT
YES
SHOWING AVAILABLE
Property Type:
Residential
Home Ownership:
Freehold

Payment Calculator

Calculate your monthly mortgage payment.

Mortgage Amount
$
Amortization
years
Payment Freq.
Interest Rate
%
Calculating...

All About the Details

See specific details below.

Neighbourhood Statistics

Get to know your neighbourhood.

Similar Properties

Other properties you might like.

Search by Keyword:
« prev 1 2 3 4 5 110 111 112 113 114 next »

Request a Showing

Have questions about this property?

Contact Scott Fraser
About This Property.


Office: 250-702-5950