Give Me A Call: 250-702-5950

#916 2885 Boys Duncan, BC V9L 4Y9

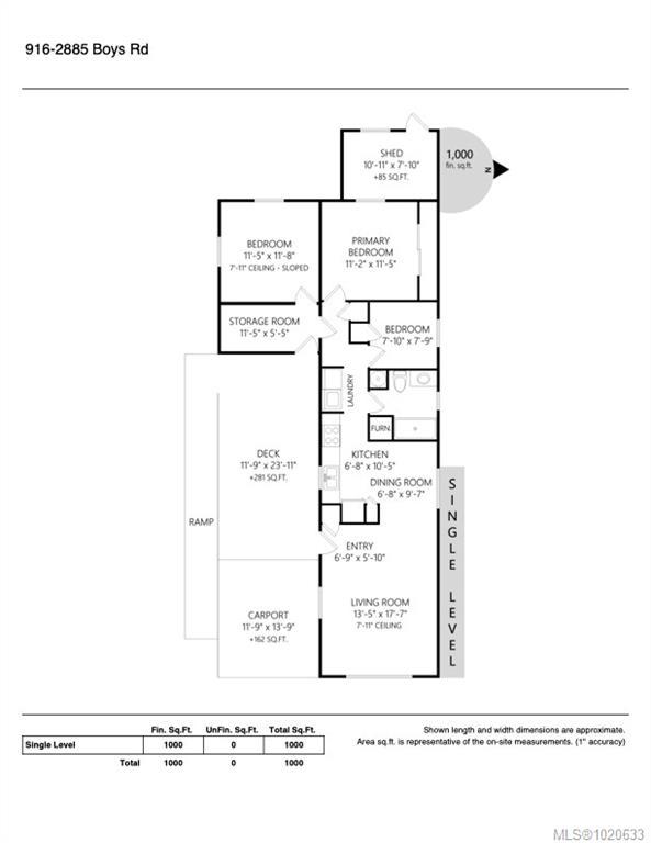
#916 2885 Boys Rd

Offered at: $159,000

MLS®: 1020633

Discover your perfect retreat in this charming 3-bedroom, 1-bathroom mobile home, nestled within a desirable 55+ mobile home park. Spanning 1,000 square feet, this inviting residence features an indoor storage room for all your organizational needs and is designed with accessibility in mind, offering a ramp and lift for easy wheelchair access. Enjoy the convenience of a carport for your vehicle, while the large covered patio provides an ideal space for relaxing or entertaining friends and family. Additionally, there's room for a small garden, allowing you to embrace your green thumb in a welcoming community. Don’t miss out on this wonderful opportunity to enjoy comfortable living in a vibrant 55+ setting!

Quick Stats

Key Home Data

1
BATH(S)
2
BED(S)
Contact for
SQFT
YES
SHOWING AVAILABLE
Property Type:
Residential
Home Ownership:
Pad Rental

Payment Calculator

Calculate your monthly mortgage payment.

Mortgage Amount
$
Amortization
years
Payment Freq.
Interest Rate
%
Calculating...

All About the Details

See specific details below.

Neighbourhood Statistics

Get to know your neighbourhood.

Similar Properties

Other properties you might like.

Search by Keyword:
« prev 1 2 3 4 5 53 54 55 56 57 next »

Request a Showing

Have questions about this property?

Contact Scott Fraser
About This Property.


Office: 250-702-5950