Give Me A Call: 250-702-5950

4955 Laguna Nanaimo, BC V9T 5L7

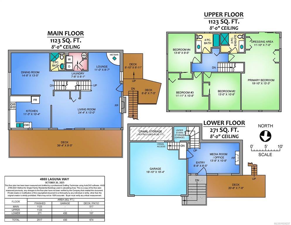
4955 Laguna Way

Offered at: $1,088,000

MLS®: 1024237

This is a must see, beautifully updated Big Oceanview home. Enjoy privacy, nature, & stunning ocean & forest vistas from nearly every window. Mature trees & flowering landscapes. Outdoor living is unbeatable with a 40-foot Oceanview deck for sunrises, sunsets, & BBQs. A grassy side yard + deck for multi-use & storage shed. The fully upgraded 3-level residence boasts nearly $300,000 in improvements throughout: Hardie Plank siding w/ cedar & stone accents, triple-glazed windows, new flooring, fresh paint, updated lighting, SS appliances & so much more! Take in scenic views from the Winchelsea Islands to the Vancouver skyline, w/ eagles, ferries, & sailboats. The bright, open main entertaining level connects to both decks, while all 4 bedrooms—including a reimagined primary suite—are upstairs. The lower level offers a welcoming entry, flexible office/media space, & double garage. Enjoy year-round comfort with a heat pump and fireplaces. Close to schools, shopping, beaches, parks, & trails

Quick Stats

Key Home Data

3
BATH(S)
4
BED(S)
Contact for
SQFT
YES
SHOWING AVAILABLE
Property Type:
Residential
Home Ownership:
Freehold

Payment Calculator

Calculate your monthly mortgage payment.

Mortgage Amount
$
Amortization
years
Payment Freq.
Interest Rate
%
Calculating...

All About the Details

See specific details below.

Neighbourhood Statistics

Get to know your neighbourhood.

Similar Properties

Other properties you might like.

Search by Keyword:
« prev 1 2 3 4 5 95 96 97 98 99 next »

Request a Showing

Have questions about this property?

Contact Scott Fraser
About This Property.


Office: 250-702-5950