Give Me A Call: 250-702-5950

#A 500 Industrial Park Gold River, BC V0P 1G0

#A 500 Industrial Park Pl

Offered at: $1,075

MLS®: 1024758

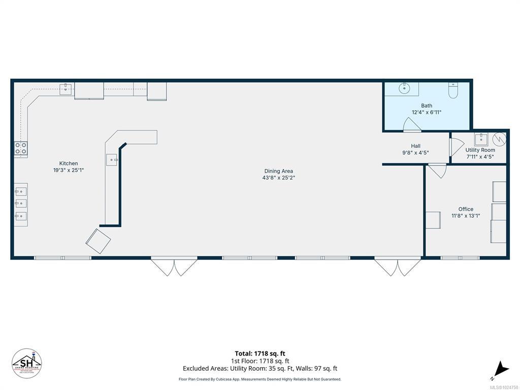
Business opportunity in Gold River. 1850 sq ft of ready-to-go lease space for a restaurant with the equipment included. This unique space next to the river is available today. $1250 per month from April until October and $900 per month from November to March. Restaurant electricity is not included. The tenant will reimburse the landlord for 80% of garbage, sewer, and water (GSW) costs, as well as snow removal. The tenant is responsible for 95% of the house’s electrical costs, attributable to exterior lighting and the heat pump (Unit B does not use the heat pump), plus a proportionate share of property taxes based on area. These additional charges total $725 per month, plus GST, and are subject to annual adjustment.

Quick Stats

Key Home Data

0
BATH(S)
BED(S)
Contact for
SQFT
YES
SHOWING AVAILABLE
Property Type:
Commercial Lease
Home Ownership:
Other

Payment Calculator

Calculate your monthly mortgage payment.

Mortgage Amount
$
Amortization
years
Payment Freq.
Interest Rate
%
Calculating...

All About the Details

See specific details below.

Neighbourhood Statistics

Get to know your neighbourhood.

Similar Properties

Other properties you might like.

Search by Keyword:
« prev 1 2 3 4 5 36 37 38 39 40 next »

Request a Showing

Have questions about this property?

Contact Scott Fraser
About This Property.


Office: 250-702-5950