Give Me A Call: 250-702-5950

#52 7701 Central Saanich Central Saanich, BC V0S 1M0

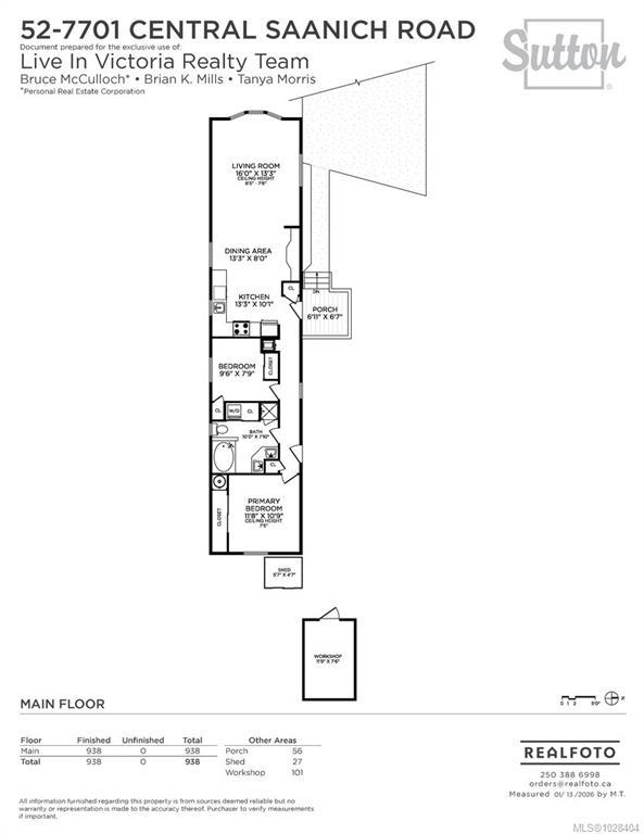
#52 7701 Central Saanich Rd

Offered at: $199,900

MLS®: 1028404

The Central Saanich Estates is a charming and well-managed 55+ community in the Mt Newton area of the Saanich Peninsula. This 2 bedroom, 5pc bathroom home is ready for your update ideas. Featuring an open plan living, dining and kitchen flooded with natural light from the skylight and bay windows. The spacious 5pc bathroom boasts a soaker tub, stand up shower and double vanity. The partially fenced backyard includes a storage shed and plenty of space for a garden or outdoor living area. Just a couple of blocks away from shopping, banking, dining at the Central Saanich center, and a short drive to the beautiful, walkable Sidney by the Sea with it’s abundance of amenities and attractions. Proudly offered at $199,900.

Quick Stats

Key Home Data

1
BATH(S)
2
BED(S)
Contact for
SQFT
YES
SHOWING AVAILABLE
Property Type:
Residential
Home Ownership:
Pad Rental

Payment Calculator

Calculate your monthly mortgage payment.

Mortgage Amount
$
Amortization
years
Payment Freq.
Interest Rate
%
Calculating...

All About the Details

See specific details below.

Neighbourhood Statistics

Get to know your neighbourhood.

Similar Properties

Other properties you might like.

Search by Keyword:
« prev 1 2 3 4 5 85 86 87 88 89 next »

Request a Showing

Have questions about this property?

Contact Scott Fraser
About This Property.


Office: 250-702-5950