$ 159,000
–
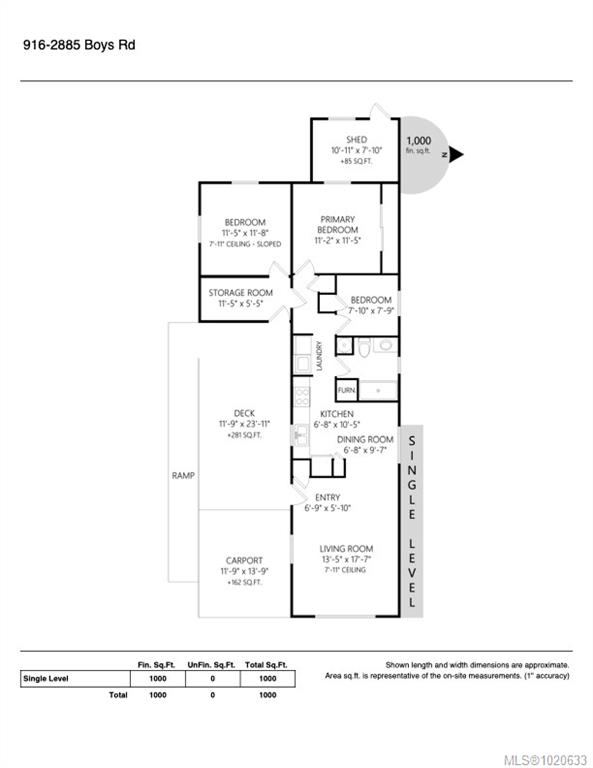
#916 2885 Boys Rd
This listing presented by
Scott Fraser
. Contact Scott by phone:
250-702-5950
or email direct
here
.
Overview
Map & Nearby
Street View
Print
Download
Contact Agent
Listing Info
Area:
Duncan
Property Type:
Residential
Ownership:
Pad Rental
MLS® Number:
1020633
Bedroom:
2
Bathroom:
1
Year Built:
1979
Lot Size:
0.00
Listing Status:
Active
List Price:
$ 159,000
Place Nearby
(within radius 1.5 km)
Contact Agent
Download
Print