$ 395,000
–
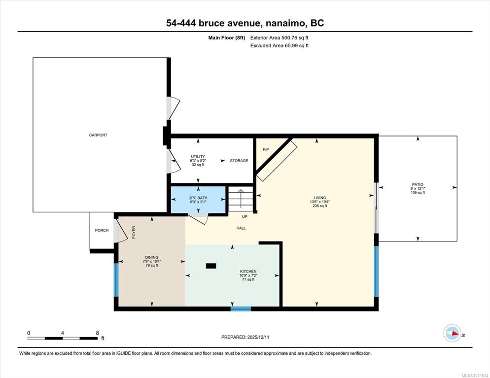
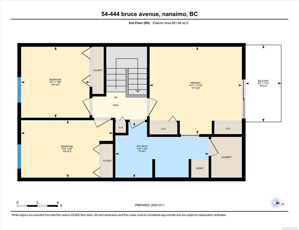
#54 444 Bruce Ave
This listing presented by
Scott Fraser
. Contact Scott by phone:
250-702-5950
or email direct
here
.
Overview
Map & Nearby
Street View
Print
Download
Contact Agent
Listing Info
Area:
Nanaimo
Property Type:
Residential
Ownership:
Freehold/Strata
MLS® Number:
1021834
Bedroom:
3
Bathroom:
2
Year Built:
1977
Lot Size:
0.00
Listing Status:
Active
List Price:
$ 395,000
Place Nearby
(within radius 1.5 km)
Contact Agent
Download
Print