$ 650,000
–
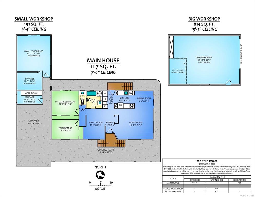
792 Reid Rd
This listing presented by
Scott Fraser
. Contact Scott by phone:
250-702-5950
or email direct
here
.
Overview
Map & Nearby
Street View
Print
Download
Contact Agent
Listing Info
Area:
Parksville
Property Type:
Residential
Ownership:
Freehold
MLS® Number:
1021825
Bedroom:
2
Bathroom:
2
Year Built:
1974
Lot Size:
26571.60
Listing Status:
Active
List Price:
$ 650,000
Place Nearby
(within radius 1.5 km)
Contact Agent
Download
Print