$ 1,199,900
–
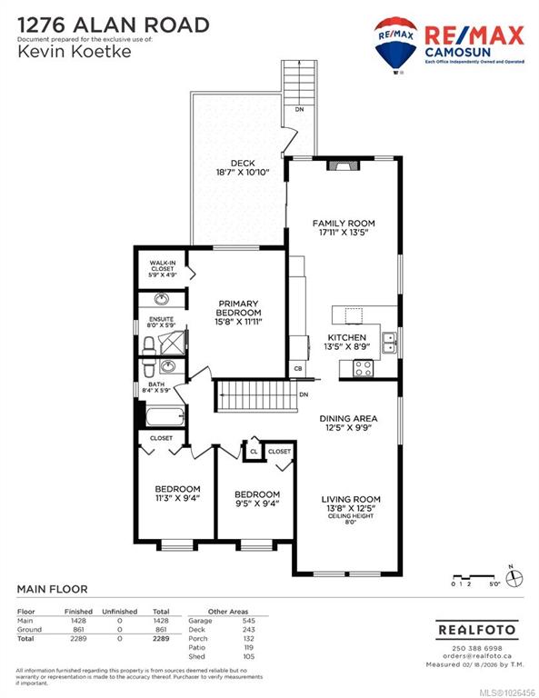
1276 Alan Rd
This listing presented by
Scott Fraser
. Contact Scott by phone:
250-702-5950
or email direct
here
.
Overview
Map & Nearby
Street View
Print
Download
Contact Agent
Listing Info
Area:
Saanich
Property Type:
Residential
Ownership:
Freehold
MLS® Number:
1026456
Bedroom:
4
Bathroom:
3
Year Built:
2001
Lot Size:
6300.00
Listing Status:
Active
List Price:
$ 1,199,900
Place Nearby
(within radius 1.5 km)
Contact Agent
Download
Print