Give Me A Call: 250-702-5950

1134 Trans Canada Ladysmith, BC V9G 1A3

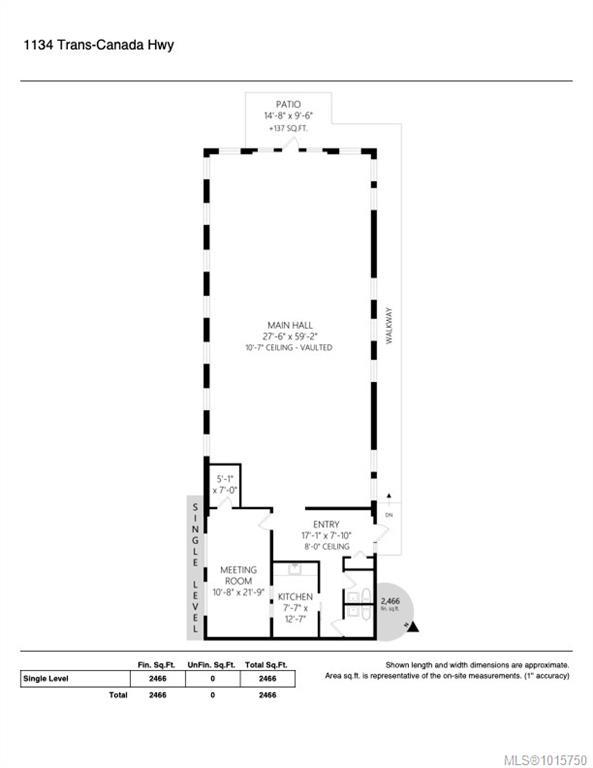
1134 Trans Canada Hwy

Offered at: $699,000

MLS®: 1015750

Welcome, developers! Exciting new changes to the Ladysmith R2 zone now permit higher density developments. This .39-acre lot can accommodate an 8-plex, or you can unleash your creativity and collaborate with designers to craft a multi-unit building.This building currently has 2 2pc bathrooms, small kitchenette, large hall and meeting rooms, but with some minor modifications, this space could also be transformed into a two-bedroom residential suite, generating income while you apply for development permits. Don't miss this opportunity!

Quick Stats

Key Home Data

0
BATH(S)
BED(S)
Contact for
SQFT
YES
SHOWING AVAILABLE
Property Type:
Commercial Sale
Home Ownership:
Freehold

Payment Calculator

Calculate your monthly mortgage payment.

Mortgage Amount
$
Amortization
years
Payment Freq.
Interest Rate
%
Calculating...

All About the Details

See specific details below.

Neighbourhood Statistics

Get to know your neighbourhood.

Similar Properties

Other properties you might like.

Search by Keyword:
« prev 1 2 3 4 5 10 11 12 13 14 next »

Request a Showing

Have questions about this property?

Contact Scott Fraser
About This Property.


Office: 250-702-5950